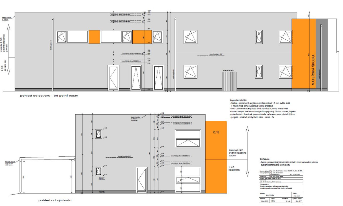
V průběhu měsíce července naše společnost dokončila projekt přístavby a nástavby mateřské školy v obci Česká. Účelem projektu bylo zkvalitnění infrastruktury v oblasti předškolního vzdělávání dětí a zvýšení její dostupnosti. Dále se vyřešila změna zdroje vytápění celého objektu na tepelné čerpadlo a byly instalovány fotovoltaické panely na střechu školy. Kapacita školky před realizací projektu byla 28 dětí, tím, že nyní je objekt dvoupodlažní zvýšila se kapacita školky na dalších 28 dětí. Objekt je jednoduchého obdelníkového půdorysu s orientací pobytové části na jihovýchod. Dispozice obou podlaží a tříd jsou prakticky shodné. Obě podlaží jsou propojená schodištěm na západní straně objektu, dále pak vnitřním požárně uníkovým schodištěm v nově přistavěné východní části. Výtah pro imobilní zůstal beze změn zachován. Vstup je situovaný ve schodištově části, která navazuje na samotný objekt školky. V hlavním traktu se nachází šatna dětí, umývárna, herna a WC. Ve druhém traktu se nachází zázemí personálu, úklid, výdej jídla, sklady a lehárna pro děti. Jsme rádi, že jsme mohli být součásti tohoto projektu, který přispěje ke zkvalitnění života v obci.

